¿Te llamamos?

Buscar Ref:
Email
info@immotesa.com
Mov
647 221 489
Tel
93 518 42 24

con nosotros es fácil

EN DOCTOR MORAGAS | 550 €, 50 m²

550 €
compartir
    facebook
  • twiter
  • whatsapp
favoritos
icono_email
icono_email
icono_email
icono_email

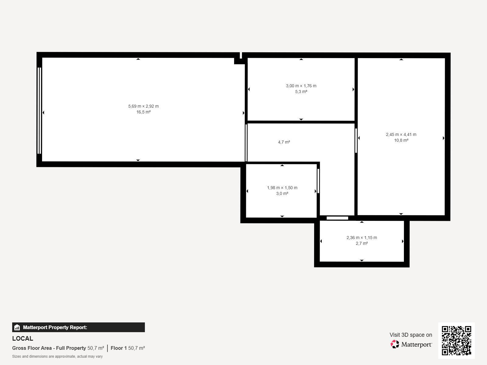
Ref: 19712076. ImmoTESA comercializa el alquiler de este local comercial en pleno centro de Barberà, en la avenida más transitada de todo el Municipio. Esta distribuido en varias estancias y también cuenta con un baño, tiene un pequeño escaparate a la calle. Barberà del Vallès es un Municipio a tan solo unos 19 Km de Barcelona, muy bien comunicado por las Autopistas AP-7 y C-58, así como RENFE Cercanías.

El inquilino a la firma del contrato deberá abonar: dos meses de fianza, el mes en curso por adelantado (+ IVA - IRPF), y un mes de fianza más el IVA para los honorarios de la inmobiliaria.

Localización del inmueble: En el centro. Estado del inmueble: Buen estado. Superficie útil: 43m2 según catastro. Superficie construida 50m2 según catastro. Certificación Energética en tramitación . Condición de Gran Tenedor : NO. Número de Registro AICAT 9535. Nº de API A13008. De conformidad con lo dispuesto en el artículo 20.1 del TRLDCU: Impuestos a cargo del comprador: En el caso de IVA. - al tipo vigente (Ley 37/1992, de 28 de diciembre, del Impuesto sobre el Valor Añadido) En el caso de ITP. - sobre el mayor de los valores entre el precio de venta o el de referencia catastral, oscilando en función de las condiciones del comprador (Real Decreto Legislativo 1/1993, de 24 de septiembre, por el que se aprueba el Texto refundido la Ley del Impuesto sobre Transmisiones Patrimoniales y Actos Jurídicos Documentados) NOTARIA Y REGISTRO: Son gastos sometidos a arancel, si bien su coste estimado puede oscilar para la notaría y el registro (Real Decreto 1426/1989, de 17 de noviembre, por el que se aprueba el Arancel de los Notarios y Real Decreto 1427/1989, de 17 de noviembre, por el que se aprueba el Arancel de los Registradores de la Propiedad respectivamente). El precio anunciado no incluye impuestos ni gastos de la compraventa. La parte compradora no pagará honorarios a esta inmobiliaria, los asume en su totalidad la parte vendedora.



Servicios cercanos: Autobús, Colegios, Biblioteca, Parque, Farmacia, Supermercado, Restaurantes, Mercado, Centro sanitario, Centro comercial, Centro deportivo

Situación
93-5184224
General
Referencia

19712076

Tipo de Inmueble

Local

Transacción

Alquiler

Situación
Provincia

Barcelona

Población

Barberá del Vallés

Zona

CENTRO

Características
Estado del Inmueble Buen estado
Año Construcción 1973
Superficie

50 m²

Baños Aseos: 1
Acabados
Puerta principal Acristalada
Puertas Madera pintada
Ventanas Aluminio
Suelo Parquet
Certificado Energético En Proceso de Certificación
eficiencia_energetica_software_inmobiliaria
Recomendaciones
Ref. 19712057 - Alquiler Oficina en PARQUE EUROPA - Barberá del Vallés
750 €

icono_superficie 106 m²

icono_email
favoritos
+ info
Ref. 19712012 - Alquiler Oficina en CENTRO - Barberá del Vallés
795 €

icono_superficie 90 m²

icono_email
favoritos
+ info

Alquiler Local en CENTRO - Barberá del Vallés

550 € | 50 m² |

Este sitio web utiliza Cookies propias y de terceros para recopilar información con la finalidad técnica, no se recaban ni ceden sus datos de carácter personal sin su consentimiento. Asimismo, se informa que este sitio web puede disponer de enlaces a sitios web de terceros con sus propias políticas de privacidad.


Cookies Técnicas2

Cookies de Terceros