¿Te llamamos?

Buscar Ref:
Email
info@immotesa.com
Mov
647 221 489
Tel
93 518 42 24

con nosotros es fácil

CON ASCENSOR Y BALCÓN | 184.300 €, 79 m²

184.300 €
compartir
    facebook
  • twiter
  • whatsapp
favoritos
icono_email
icono_email
icono_email
icono_email

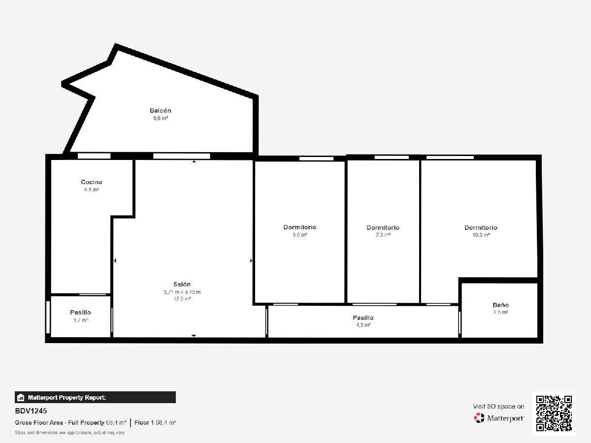
Ref: 19711979. ImmoTESA comercializa la venta de este acogedor piso reformado, en una de las mejores zonas de Badia, con ascensor a planta y balcón. Distribuido en 3 dormitorios, salón-comedor, cocina con salida a amplio balcón, y un baño con plato de ducha. Suelo de gres, carpintería interior en haya, y exterior en aluminio. Finca con ascensor. Ubicado junto a todo tipo de transportes y servicios, a tan solo unos 21 km de Barcelona, muy bien comunicado por las Autopistas AP-7 y C-58. Certificación energética en trámite.

Gastos de Notaría, Registro e Impuestos no incluidos en el precio.
La parte compradora no pagará honorarios a esta inmobiliaria, los asume en su totalidad la parte vendedora.


Servicios cercanos: Autobús, Colegios, Guardería, Biblioteca, Parque, Farmacia, Supermercado, Restaurantes, Mercado, Centro sanitario, Centro comercial, Centro deportivo

Situación
931205752
General
Referencia

19711979

Tipo de Inmueble

Piso

Transacción

Venta

Situación
Provincia

Barcelona

Población

Badia del Vallés

Zona

CENTRO

Características
Estado del Inmueble Reformado
Año Construcción 1973
Superficie

79 m²

Altura
Cocina Cocina independiente
Habitaciones 3
Baños Baños: 1
Balcón icono_ok_software_inmobiliria
Ascensor icono_ok_software_inmobiliria
Exterior icono_ok_software_inmobiliria
Acabados
Puerta principal Otro
Puertas Madera noble
Ventanas Aluminio
Cristales Cristal doble
Suelo Gres
eficiencia_energetica_software_inmobiliaria
Calificación: C
Calcula tu hipoteca
Importe a financiar
Interés
años

Recomendaciones
Ref. 19711987 - Venta Piso en CENTRO - Badia del Vallés
179.000 €

icono_superficie 84 m²

icono_habitaciones 3

icono_email
favoritos
+ info
Ref. 19711921 - Venta Piso en CENTRO - Badia del Vallés
178.630 €

icono_superficie 82 m²

icono_habitaciones 3

icono_email
favoritos
+ info
Ref. 19711795 - Venta Piso en CENTRO - Badia del Vallés
142.500 €

icono_superficie 81 m²

icono_habitaciones 2

icono_email
favoritos
+ info

Venta Piso en CENTRO - Badia del Vallés

184300 € | 79 m² | 3 Habitaciones | 1 Baños

Este sitio web utiliza Cookies propias y de terceros para recopilar información con la finalidad técnica, no se recaban ni ceden sus datos de carácter personal sin su consentimiento. Asimismo, se informa que este sitio web puede disponer de enlaces a sitios web de terceros con sus propias políticas de privacidad.


Cookies Técnicas2

Cookies de Terceros