¿Te llamamos?

Buscar Ref:
Email
info@immotesa.com
Mov
647 221 489
Tel
93 518 42 24

con nosotros es fácil

PISCINA, PARKING Y TRASTERO | 306.000 €, 85 m²

306.000 €
compartir
    facebook
  • twiter
  • whatsapp
favoritos
icono_email
icono_email
icono_email
icono_email

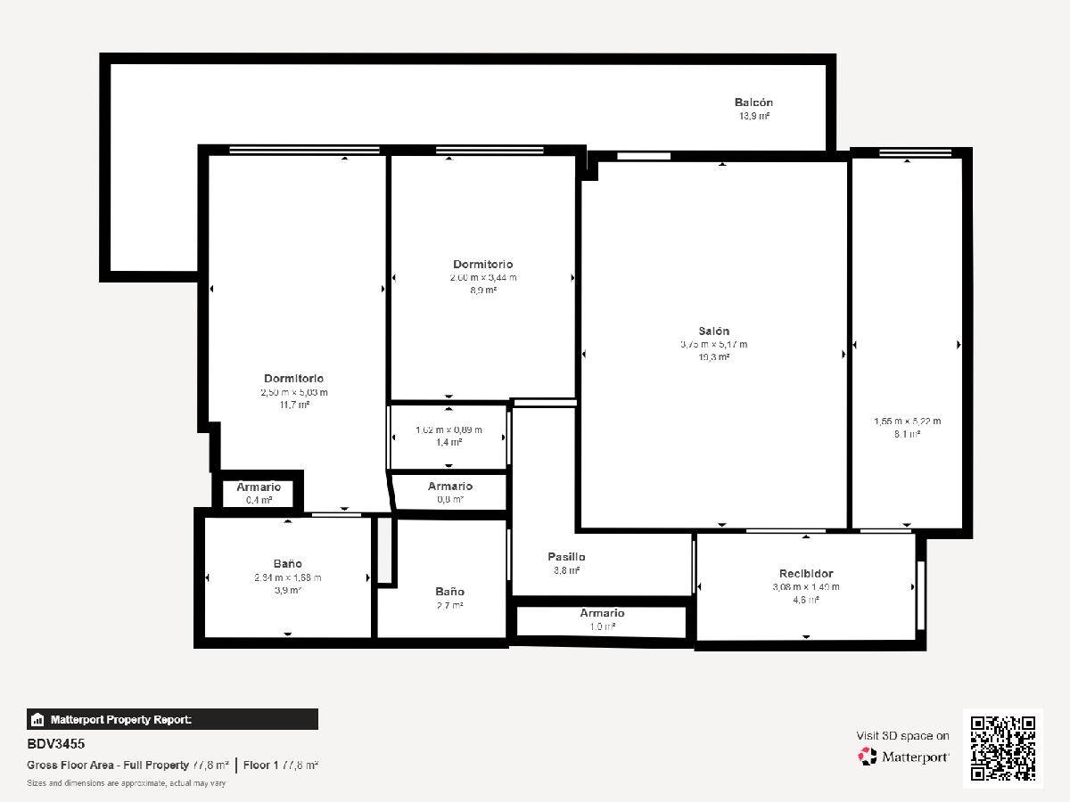
Ref: 19712068. ImmoTESA comercializa la venta de esta magnífica vivienda en la zona de Parc Europa, de Barberà del Vallès, ideal para quienes buscan confort, luz y calidad de vida en un entorno cuidado.

Se trata de un piso esquinero, completamente exterior, lo que garantiza una excelente entrada de luz natural durante todo el día. La vivienda cuenta con dos dormitorios, uno de ellos tipo suite, un salón con salida a al balcón con vistas a la zona comunitaria y a la Avenida, y dos baños, asimismo la vivienda cuenta con armarios empotrados, ofreciendo prácticos espacios de almacenamiento. También cuenta con aire acondicionado por conductos en toda la vivienda.

Ubicada en una completa zona comunitaria, donde podrás disfrutar de dos piscinas, pista de pádel y amplias zonas ajardinadas, ideales para el descanso y el ocio sin salir de casa.

En el precio está incluida una plaza de aparcamiento y un trastero en la misma finca con acceso desde el ascensor.

Barberà del Vallès está a tan solo unos 19 Km de Barcelona, muy bien comunicado por las Autopistas AP-7 y C-58, así como RENFE Cercanías.

Una oportunidad atractiva para vivir en un entorno residencial bien equipado, con todas las comodidades al alcance.

Gastos de Notaría, Registro e Impuestos no incluidos en el precio.
La parte compradora no pagará honorarios a esta inmobiliaria, los asume en su totalidad la parte vendedora.


Servicios cercanos: Autobús, Colegios, Guardería, Biblioteca, Parque, Farmacia, Supermercado, Restaurantes, Mercado, Centro sanitario, Centro comercial, Centro deportivo

Situación
93-5184224
General
Referencia

19712068

Tipo de Inmueble

Piso

Transacción

Venta

Situación
Provincia

Barcelona

Población

Barberá del Vallés

Zona

PARQUE EUROPA

Características
Estado del Inmueble Reformado
Año Construcción 2006
Superficie

85 m²

Altura
Cocina Cocina independiente
Cocina equipada icono_ok_software_inmobiliria
Habitaciones 2
Baños Baños: 2
Balcón icono_ok_software_inmobiliria
Ascensor icono_ok_software_inmobiliria
Zona Comunitaria icono_ok_software_inmobiliria
Calefacción icono_ok_software_inmobiliria gas
Garaje icono_ok_software_inmobiliria
Exterior icono_ok_software_inmobiliria
Acabados
Puerta principal Otro
Puertas Madera noble
Ventanas Aluminio
Cristales Cristal doble
Suelo Parquet
Armarios empotrados icono_ok_software_inmobiliria
eficiencia_energetica_software_inmobiliaria
Calificación:
Calcula tu hipoteca
Importe a financiar
Interés
años

Recomendaciones
Ref. 19711895 - Venta Piso en CENTRO - Barberá del Vallés
305.000 €

icono_superficie 117 m²

icono_habitaciones 4

icono_email
favoritos
+ info
Ref. 19711998 - Venta Piso en CASCO ANTIGUO - Barberá del Vallés
288.000 €

icono_superficie 133 m²

icono_habitaciones 4

icono_email
favoritos
+ info
Ref. 19711926 - Venta Piso en PARQUE EUROPA - Barberá del Vallés
275.000 €

icono_superficie 93 m²

icono_habitaciones 3

icono_email
favoritos
+ info

Venta Piso en PARQUE EUROPA - Barberá del Vallés

306000 € | 85 m² | 2 Habitaciones | 2 Baños

Este sitio web utiliza Cookies propias y de terceros para recopilar información con la finalidad técnica, no se recaban ni ceden sus datos de carácter personal sin su consentimiento. Asimismo, se informa que este sitio web puede disponer de enlaces a sitios web de terceros con sus propias políticas de privacidad.


Cookies Técnicas2

Cookies de Terceros